ID CP2837384

Apartament 3 camere | Parter înalt | Pivnita | Terezian

ID CP2837384

122,000 €

Apartament cu 3 camere de vânzare
Terezian, Sibiu
66 mp
1982

MAAC Imobiliare vă propune spre vânzare un apartament bine întreținut, situat în cartierul Terezian din Sibiu, o zonă apreciată pentru liniște, accesibilitate și facilitățile din proximitate, potrivită atât pentru locuire, cât și pentru investiție.

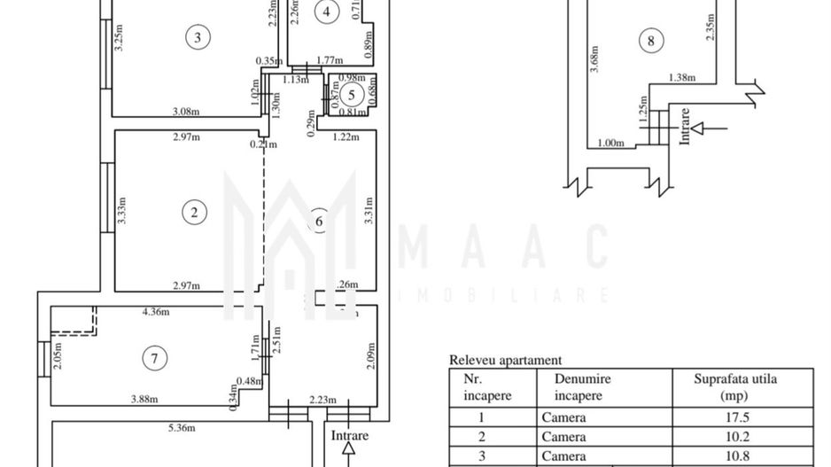
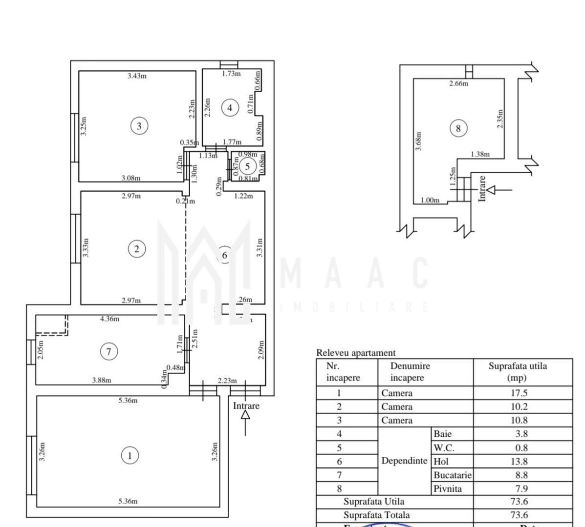
Apartamentul cu 3 camere este amplasat la parter înalt într-un imobil cu 4 etaje, construit în 1982 și termoizolat, oferind confort termic sporit pe tot parcursul anului. Suprafața utilă este de 66 mp, la care se adaugă o pivniță de 8 mp, ideală pentru depozitare suplimentară.

Compartimentarea inteligentă include:

-living luminos și primitor

-2 dormitoare bine proporționate

-bucătărie complet utilată

-2 băi

-pivniță uscată și accesibilă

Proprietatea se vinde complet mobilată și utilată, fiind pregătită pentru mutare imediată, fără necesitatea unor investiții suplimentare. Instalația electrică este refăcută recent, iar întreținerea apartamentului a fost realizată exemplar.

Imobilul este poziționat aproape de puncte de interes precum magazine, transport public, școli și zone verzi, oferind un echilibru optim între confort, funcționalitate și acces rapid către facilitățile urbane.

Pentru mai multe detalii sau programarea unei vizionări vă rugăm să menționați la telefon numărul CP2837384.

Citește mai mult

  • Tip apartament
    Apartament
  • Compartimentare
    Decomandat
  • Număr camere
    3
  • Dormitoare
    2
  • Număr bucătării
    1
  • Număr băi
    2
  • Geam la baie
    Da
  • Etaj
    Parter
  • Suprafață utilă
    66 mp
  • Suprafață construită
    80 mp
  • Disponibilitate
    Imediat
  • Imobil
    Bloc de apart.
  • Stadiu construcție
    Finalizată
  • An construcție
    1982
  • Tip construcție
    Cărămidă
  • Număr etaje clădire
    4
  • Are pod
    Da

Facilități

Acoperiș
Apă
Apometre
Aragaz
Bucătărie închisă
Bucătărie mobilată
Bucătărie utilată
Cabină de duș
Calorifere
Canalizare
CATV
Centrală proprie
Contor electric
Contor gaz
Curent
Faianță
Frigider
Gaz
Gresie
Hotă
Iluminat stradal
Interfon
Internet
Izolație exterioară
Mașină de spălat rufe
Mașină de spălat vase
Mijloace de transport în comun
Mobilat complet
Parchet
Pivniță
Străzi asfaltate
Telefon
Ușă intrare metal
Uși interior lemn
Vopsea lavabilă
Darius Mihu - MAAC Imobiliare
Darius Mihu
Consultant Imobiliar

0724251226


Solicită chiar acum o vizionare
Nume
Telefon
Email
Sună acum Solicită vizionare
Necesare:

Site-ul nu poate funcționa corect fără aceste cookie-uri. Vezi cookie-urile

Statistică:

Strângem statistici anonime despre voi, vizitatorii unici, pentru a vă îmbunătăți experiența dumneavoastră. Vezi cookie-urile

Marketing:

Pentru a ne promova mai eficient serviciile noastre, folosim cookies pentru a vă identifica și a vă oferi proprietăți și servicii personalizate. Vezi cookie-urile

Acest site folosește cookies, află detalii. Alege ce tipuri de cookies dorești să permitem: