ID CP2882384

Cladire de birouri I 12 camere I Parcare I Calea Dumbravii

ID CP2882384

3,950 €

Spațiu de birouri de închiriat
Calea Dumbravii, Sibiu
330 mp
2008

MAAC IMOBILIARE ofera, spre închiriere, o clădire de birouri cu poziționare și configurare ideală pentru activități corporate, concepută pentru a susține eficient operațiuni de business, servicii profesionale și activități administrative de nivel înalt.

Asezata pe un teren de cca 420mp, cladirea, cu amprenta la sol de 160mp, are o compartimentare inteligentă, adaptabilă diverselor structuri organizaționale, oferind un echilibru optim între spații individuale, zone de colaborare și facilități comune.

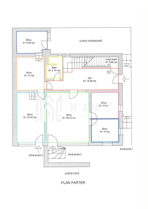
La parter- 6 birouri, baie, hol de acces, casa scarii; la etaj-4 birouri, 2 bai, 2 spatii de arhivare, terasa; subsol-sala conferinte, spatiu relaxare, bucatarie cu loc de luat masa, spatii arhivare, depozitare.

Incalzirea- centrala termica pe gaz, calorifere.

Instalatie de aer conditionat.

In curte pot fi parcate 6 masini.

In spatele imobilului, curte-zonă de relaxare pentru angajați / spațiu informal de networking.

La parter-configurație flexibilă, ușor de personalizat- funcție de nevoile chiriașului.

Spații bine proporționate, luminoase și eficiente operațional

Proprietatea oferă stabilitate contractuală, fiind disponibilă pentru închiriere pe termen lung (ideal-minim 5 ani)

Confera o imagine profesională, potrivită pentru companii care își doresc un spațiu reprezentativ.

Destinații ideale:

✔ Sediu companie / headquarter

✔ Firmă de consultanță, avocatură, audit

✔ IT, software, digital services

✔ Educație corporate, training, coaching

✔ Servicii profesionale, administrative sau financiare

Proprietatea se adresează exclusiv chiriașilor care caută continuitate, stabilitate și un spațiu aliniat standardelor inalte, într-un cadru profesional și bine organizat; oferă stabilitate contractuală, fiind disponibilă pentru închiriere pe termen lung (ideal-minim 5 ani)

Predarea - fara mobila.

Se inchiriaza de pe persoana fizica.

Se percepe garantie in cuantumul a 3 chirii lunare.

Pentru mai multe detalii precizati telefonic ca ati vazut anuntul cu ID:CP2882384

Citește mai mult

  • Clasă birouri
    A
  • Număr camere
    12
  • Număr băi
    3
  • Număr terase
    2
  • Suprafață utilă
    330 mp
  • Disponibilitate
    Imediat
  • Suprafață totală birouri
    280 mp
  • Compartimentare spațiu
    Compartimentat
  • Parcări suprafață
    6
  • An construcție
    2008
  • Număr etaje clădire
    1
  • Număr subsoluri
    1

Facilități

Afișare logo pe clădire
Centrală termică
Centru comercial în apropiere
Ferestre care se deschid
Gresie
Grupuri sanitare amenajate și utilate
Internet
Parcare deschisă
Parchet
Sistem de ventilație
Stație de autobuz în apropiere
Raluca Hagiu - MAAC Imobiliare
Raluca Hagiu
Manager Vânzări

0722622403


Solicită chiar acum o vizionare
Nume
Telefon
Email
Sună acum Solicită vizionare
Necesare:

Site-ul nu poate funcționa corect fără aceste cookie-uri. Vezi cookie-urile

Statistică:

Strângem statistici anonime despre voi, vizitatorii unici, pentru a vă îmbunătăți experiența dumneavoastră. Vezi cookie-urile

Marketing:

Pentru a ne promova mai eficient serviciile noastre, folosim cookies pentru a vă identifica și a vă oferi proprietăți și servicii personalizate. Vezi cookie-urile

Acest site folosește cookies, află detalii. Alege ce tipuri de cookies dorești să permitem: