ID CP2739480

Casă modernă | 3 dormitoare | 140 mp curte | 120 mp utili | Preț avantajos

ID CP2739480

129,700 €

Casă / Vilă cu 4 camere de vânzare
Sura Mica
114.8 mp
2024

Maac Imobiliare prezintă o casă spațioasă, perfectă pentru o familie, situată într-o zonă liniștită. Aceasta este disponibilă în două variante de achiziție:

129.700€ – la roșu interior, finisată exterior

107.300€ – dacă achiziția se face pe firmă (fără TVA)

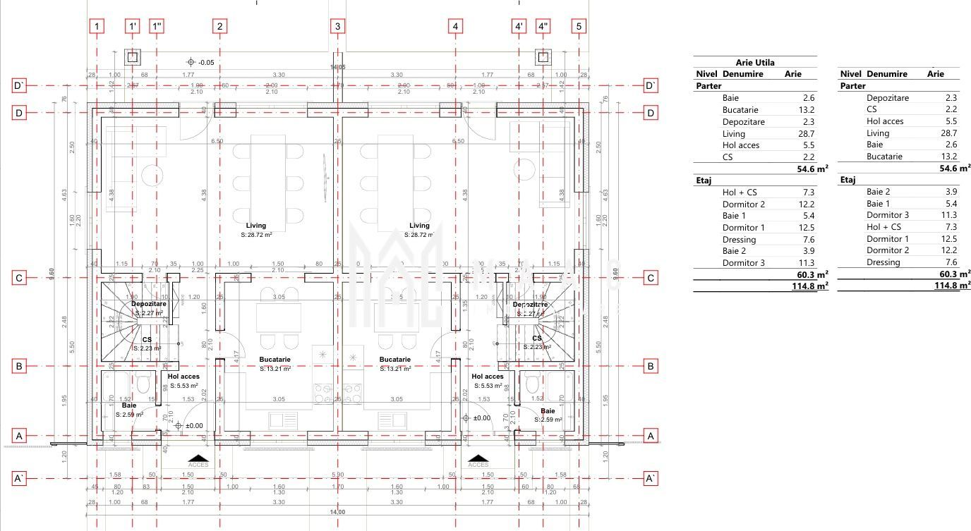
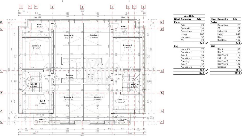
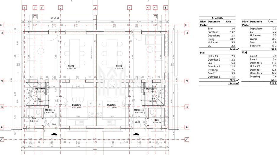
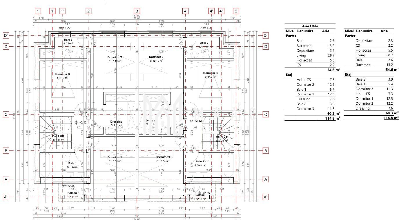
Suprafață și compartimentare:

Suprafață utilă: 114.8 mp

Curte: 140 mp

Parter:

Living generos (28.7 mp)

Bucătărie spațioasă (13.2 mp)

Baie (2.6 mp)

Hol acces și spațiu de depozitare

Etaj:

Dormitor matrimonial cu dressing (12.5 mp) și baie proprie (5.4 mp)

Dormitor 2: 12.2 mp

Dormitor 3: 11.3 mp

Baie secundară: 3.9 mp

Hol și casa scării

Locuința oferă o compartimentare inteligentă, cu spații bine optimizate și lumină naturală din abundență.

Pentru mai multe detalii precizati telefonic ca ati vazut anuntul ID: CP2739480

Citește mai mult

  • Număr camere
    4
  • Dormitoare
    3
  • Număr bucătării
    1
  • Număr băi
    2
  • Număr balcoane
    1
  • Disponibilitate
    Imediat
  • Tip casă
    Duplex
  • Stare interior
    Bună
  • Suprafață utilă
    114.8 mp
  • Suprafață construită
    150 mp
  • Suprafață construită la sol (Amprentă)
    58.0 mp
  • Suprafață teren
    240 mp
  • Suprafață curte liberă
    140 mp
  • Stadiu construcție
    Finalizată
  • An construcție
    2024
  • Construcție nouă
    Da
  • Tip construcție
    Cărămidă
  • Număr etaje clădire
    1

Facilități

Apă
Apometre
Bucătărie închisă
Canalizare
CATV
Centrală proprie
Contor electric
Contor gaz
Curent
Debara
Gaz
Geamuri termopan
Iluminat stradal
Internet
Izolație exterioară
Mijloace de transport în comun
Parcare deschisă
Străzi asfaltate
Telefon
Ușă intrare metal
Uși interior PVC
Marian Marcu - MAAC Imobiliare
Marian Marcu
Consultant imobiliar

0722622403


Solicită chiar acum o vizionare
Nume
Telefon
Email
Sună acum Solicită vizionare
Necesare:

Site-ul nu poate funcționa corect fără aceste cookie-uri. Vezi cookie-urile

Statistică:

Strângem statistici anonime despre voi, vizitatorii unici, pentru a vă îmbunătăți experiența dumneavoastră. Vezi cookie-urile

Marketing:

Pentru a ne promova mai eficient serviciile noastre, folosim cookies pentru a vă identifica și a vă oferi proprietăți și servicii personalizate. Vezi cookie-urile

Acest site folosește cookies, află detalii. Alege ce tipuri de cookies dorești să permitem: