ID CP2974471

Proprietate exceptionala in Șelimbăr I gradina generoasă

ID CP2974471

245,000 € (negociabil)

Casă / Vilă cu 4 camere de vânzare
Selimbar
146 mp
2026

MAAC Imobiliare vinde o casa cuplata P+1E+pod, întabulata, cu teren generos, în Selimbar, în zona exclusiva de case, cu bransamente la urmatoarele retele: apa, gaz, curent trifazic si fibra optica.

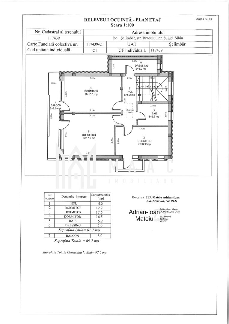
Suprafata construita desfasurata: 192 mp pe doua niveluri

Suprafata utila: 146 mp pe doua niveluri (cu o terasa acoperita de 16 mp)

Suprafata totala a terenului: 475 mp

Compartimentare:

- Parter: living cu bucatarie open-space (se poate compartimenta), baie, camara, hol de intrare, terasa acoperita, magazie exterioara

- Etaj: hol, 3 dormitoare cu balcon individual, 1 baie, 1 dressing

- Pod: open-space, ca si spatiu pentru depozitare si instalatie electrica

Interior LA ALB avansat cu 2 straturi de lavabila: centrala termica, sistem de incalzire in pardoseala P+E, instalatii electrice si sanitare, tamplarie PVC Salamander 5 camere, cu 3 foi de sticla Solar pachet 40, feronerie Rotto.

Exterior LA CHEIE: gard, poarta de acces pietonal si auto echipata pentru montaj videofon/interfon, poarta de acces auto cu instalatie electrica pentru deschidere automata, 2 locuri de parcare si zone pavate.

Citește mai mult

  • Număr camere
    4
  • Dormitoare
    3
  • Număr bucătării
    1
  • Număr băi
    2
  • Geam la baie
    Da
  • Număr balcoane
    3
  • Număr terase
    1
  • Număr locuri parcare
    2
  • Disponibilitate
    Imediat
  • Tip casă
    Individual
  • Stare interior
    Semifinisat
  • Anul finisării
    2026
  • Suprafață utilă
    146 mp
  • Suprafață construită
    192 mp
  • Suprafață teren
    475 mp
  • Suprafață curte
    330 mp
  • Suprafață terasă
    16 mp
  • Acoperiș
    Țiglă
  • Stadiu construcție
    Semifinisat
  • An construcție
    2026
  • Construcție nouă
    Da
  • Tip construcție
    Cărămidă
  • Număr etaje clădire
    1
  • Are etaj tehnic
    Da
  • Are pod
    Da

Facilități

Apă
Apometre
Canalizare
CATV
Centrală imobil
Contor căldură
Contor electric
Contor gaz
Curent
Curent trifazic (380V)
Curte
Debara
Ferestre PVC
Gaz
Grădină proprie
Încălzire prin pardoseală
Izolație exterioară
Izolație interioară
Mijloace de transport în comun
Parcare deschisă
Șapă
Străzi asfaltate
Ușă intrare PVC
Uși interior PVC
Vopsea lavabilă
Constantin Antonie - MAAC Imobiliare
Constantin Antonie
Consultant imobiliar

0722622403


Solicită chiar acum o vizionare
Nume
Telefon
Email
Sună acum Solicită vizionare
Necesare:

Site-ul nu poate funcționa corect fără aceste cookie-uri. Vezi cookie-urile

Statistică:

Strângem statistici anonime despre voi, vizitatorii unici, pentru a vă îmbunătăți experiența dumneavoastră. Vezi cookie-urile

Marketing:

Pentru a ne promova mai eficient serviciile noastre, folosim cookies pentru a vă identifica și a vă oferi proprietăți și servicii personalizate. Vezi cookie-urile

Acest site folosește cookies, află detalii. Alege ce tipuri de cookies dorești să permitem: