ID CP2967184

Casă 103 mpu I Curte proprie I Panouri Solare I Cristian

ID CP2967184

229,000 € (negociabil) TVA inclus

Casă / Vilă cu 3 camere de vânzare
Cristian
103 mp
2025

MAAC Imobiliare oferă spre vânzare o locuință modernă, recent finalizată, situată în localitatea Cristian, județul Sibiu.

Ansamblul cuprinde două unități locative construite în oglindă, despărțite printr-un perete dublu, ceea ce asigură o izolare fonică excelentă și un nivel ridicat de intimitate.

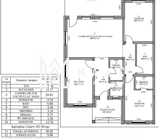
Compartimentată din:

-living generos cu zonă de dining și ieșire pe terasa de 30 mp, bucătărie separată, două dormitoare (unul prevăzut cu dressing), baie principală, baie de serviciu, debara și hol.

Proprietatea este dotată cu:

-Panouri solare și baterii de stocare, precum și generator pentru situații neprevăzute,

-Centrală pe gaz, încălzire în pardoseală, izolație exterioară cu polistiren de 15 cm, izolație planșeu pod cu spumă poliuretanică( celulă închisă) și geamuri tripan.

-Podul este accesibil prin scară interioară.

-Sunt incluse două locuri de parcare betonate.

-Curtea, cu o suprafață de 350 mp, oferă un spațiu generos ce poate fi amenajat după preferințele viitorului proprietar.

Este o alegere potrivită pentru familiile care caută o casă economică- clasa energetică A, bine organizată și cu acces rapid către Sibiu.

Termenul de predare este stabilit pentru mai 2026.

Locuința se predă „la cheie” la exterior și „la alb” la interior, cu posibilitatea de finalizare completă la cerere.

Pentru mai multe detalii și pentru a programa o vizionare, contactați MAAC Imobiliare specificând ID CP2967184.

Citește mai mult

  • Număr camere
    3
  • Dormitoare
    2
  • Număr bucătării
    1
  • Număr băi
    2
  • Număr terase
    1
  • Număr locuri parcare
    2
  • Disponibilitate
    Imediat
  • Tip casă
    Duplex
  • Stare interior
    Nou
  • Anul finisării
    2025
  • Suprafață utilă
    103 mp
  • Suprafață construită
    170 mp
  • Suprafață teren
    479 mp
  • Suprafață curte liberă
    337 mp
  • Suprafață terasă
    30 mp
  • Acoperiș
    Țiglă
  • An construcție
    2025
  • Construcție nouă
    Da
  • Tip construcție
    Cărămidă
  • Are pod
    Da

Facilități

Acoperiș
Apă
Apometre
Bucătărie închisă
Canalizare
CATV
Centrală proprie
Contor electric
Contor gaz
Curent
Curte
Faianță
Ferestre care se deschid
Ferestre PVC
Geamuri tripan
Glet
Grădină proprie
Iluminat stradal
Încălzire prin pardoseală
Internet
Izolație exterioară
Mijloace de transport în comun
Nemobilat
Parcare deschisă
Străzi asfaltate
Telefon
Ușă intrare PVC
Vopsea lavabilă
Cătălin Ursu - MAAC Imobiliare
Cătălin Ursu
Consultant Imobiliar

0722622403


Solicită chiar acum o vizionare
Nume
Telefon
Email
Sună acum Solicită vizionare
Necesare:

Site-ul nu poate funcționa corect fără aceste cookie-uri. Vezi cookie-urile

Statistică:

Strângem statistici anonime despre voi, vizitatorii unici, pentru a vă îmbunătăți experiența dumneavoastră. Vezi cookie-urile

Marketing:

Pentru a ne promova mai eficient serviciile noastre, folosim cookies pentru a vă identifica și a vă oferi proprietăți și servicii personalizate. Vezi cookie-urile

Acest site folosește cookies, află detalii. Alege ce tipuri de cookies dorești să permitem: