ID CP1961086

Comision 0% | Apartament 3 camere | Etaj 1 | Loc de parcare

Această proprietate nu mai este activă,
te invităm să vizualizezi proprietăți similare

ID CP1961086

100,000 €

Apartament cu 3 camere de vânzare
Selimbar
53.65 mp
2024

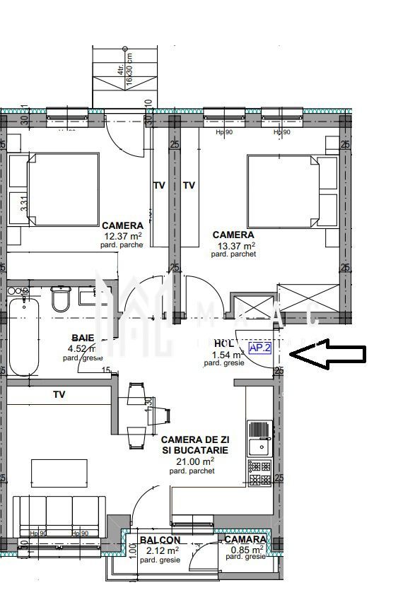
MAAC Imobiliare va propune spre vanzare un apartament situat intr-un nou complex rezidential din Selimbar.

Apartamentul are o suprafata utila de 53.65 mp compartimentati astfel:

- living open space cu bucatarie - 21 mp

- dormitor 1 - 13.37 mp

- dormitor 2 - 12.37 mp

- baie - 4.52

- balcon - 2.12 mp

- camara - 0.85 mp

Pentru mai multe informatii specificati ca ati vazut anuntul cu ID: CP1873169

Citește mai mult

  • Tip apartament
    Apartament
  • Compartimentare
    Decomandat
  • Număr camere
    3
  • Dormitoare
    2
  • Număr bucătării
    1
  • Număr băi
    1
  • Etaj
    1
  • Suprafață utilă
    53.65 mp
  • Suprafață construită
    65 mp
  • Disponibilitate
    Imediat
  • Confort
    1
  • Stare interior
    Semifinisat
  • Anul finisării
    2024
  • Număr balcoane
    1
  • Număr locuri parcare
    1
  • Imobil
    Bloc de apart.
  • Stadiu construcție
    În construcție
  • An construcție
    2024
  • Construcție nouă
    Da
  • De la dezvoltator
    Da
  • Număr etaje clădire
    1

Facilități

Apă
Apometre
Bucătărie deschisă
Canalizare
Centrală proprie
Contor electric
Contor gaz
Curent
Debara
Gaz
Geamuri termopan
Iluminat stradal
Încălzire prin pardoseală
Internet
Izolație exterioară
Mijloace de transport în comun
Parcare deschisă
Străzi asfaltate
Telefon
Ușă intrare metal
Necesare:

Site-ul nu poate funcționa corect fără aceste cookie-uri. Vezi cookie-urile

Statistică:

Strângem statistici anonime despre voi, vizitatorii unici, pentru a vă îmbunătăți experiența dumneavoastră. Vezi cookie-urile

Marketing:

Pentru a ne promova mai eficient serviciile noastre, folosim cookies pentru a vă identifica și a vă oferi proprietăți și servicii personalizate. Vezi cookie-urile

Acest site folosește cookies, află detalii. Alege ce tipuri de cookies dorești să permitem: