ID CP2792656

Spatiu de Birouri | 82 mp | Curte 100 mp | Turnisor

ID CP2792656

650 €

Apartament cu 3 camere de închiriat
Turnisor, Sibiu
82 mp
2020

MAAC Imobiliare vă propune spre închiriere un spațiu de birouri modern și luminos, situat într-o zonă liniștită și ușor accesibilă, ideal pentru activități de birou, consultanță, IT, arhitectură sau alte servicii profesionale.

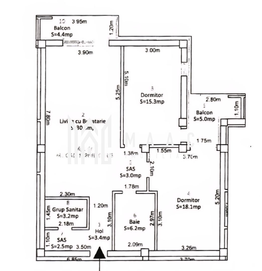
Proprietatea dispune de o suprafață utilă de 82 mp, compartimentată eficient pentru a răspunde nevoilor unui mediu de lucru confortabil și funcțional.

Detalii spațiu:

3 camere spațioase;

1 baie modernă;

1 bucătărie;

2 balcoane;

Curte proprie de 100 mp, ce poate fi amenajată ca zonă de relaxare pentru echipă sau spațiu outdoor de lucru;

2 locuri de parcare – unul subteran, unul suprateran, oferind acces facil pentru angajați și clienți.

Spațiul se închiriază nemobilat, oferind libertate totală de amenajare în funcție de specificul activității.

Durata minimă de închiriere: 12 luni

Preț chirie: 650 Euro / lună (TVA inclus)

Pentru companii care își doresc un spațiu reprezentativ, modern și cu acces rapid către principalele artere, această proprietate reprezintă o alegere excelentă.

Pentru detalii suplimentare și programarea unei vizionări:

MAAC Imobiliare – Soluții profesionale pentru spații de business.

ID: CP2792656.

Citește mai mult

  • Tip apartament
    Apartament
  • Compartimentare
    Decomandat
  • Număr camere
    3
  • Număr bucătării
    1
  • Număr băi
    1
  • Etaj
    Parter
  • Suprafață utilă
    82 mp
  • Suprafață totală
    91.4 mp
  • Suprafață curte
    100 mp
  • Disponibilitate
    Imediat
  • Stare interior
    Finisat modern
  • Număr balcoane
    2
  • Număr locuri parcare
    2
  • Imobil
    Bloc de apart.
  • Stadiu construcție
    Finalizată
  • An construcție
    2020
  • Construcție nouă
    Da
  • Tip construcție
    Cărămidă
  • Număr etaje clădire
    3
  • Număr etaje retrase
    1

Facilități

Acces pentru persoane cu dizabilități
Apă
Apometre
Bucătărie închisă
Bucătărie mobilată
Bucătărie utilată
Canalizare
CATV
Centrală proprie
Contor electric
Contor gaz
Curent
Curte
Faianță
Ferestre PVC
Frigider
Garaj subteran
Gaz
Geamuri termopan
Gresie
Iluminat stradal
Încălzire prin pardoseală
Internet
Izolație exterioară
Mașină de spălat vase
Mijloace de transport în comun
Nemobilat
Parcare deschisă
Parchet laminat
Străzi asfaltate
Telefon
Ușă intrare metal
Uși interior lemn
Videointerfon
Vopsea lavabilă
Darius Mihu - MAAC Imobiliare
Darius Mihu
Consultant Imobiliar

0722622403


Solicită chiar acum o vizionare
Nume
Telefon
Email
Sună acum Solicită vizionare
Necesare:

Site-ul nu poate funcționa corect fără aceste cookie-uri. Vezi cookie-urile

Statistică:

Strângem statistici anonime despre voi, vizitatorii unici, pentru a vă îmbunătăți experiența dumneavoastră. Vezi cookie-urile

Marketing:

Pentru a ne promova mai eficient serviciile noastre, folosim cookies pentru a vă identifica și a vă oferi proprietăți și servicii personalizate. Vezi cookie-urile

Acest site folosește cookies, află detalii. Alege ce tipuri de cookies dorești să permitem: